
Bauen im denkmalgeschützten Kontext
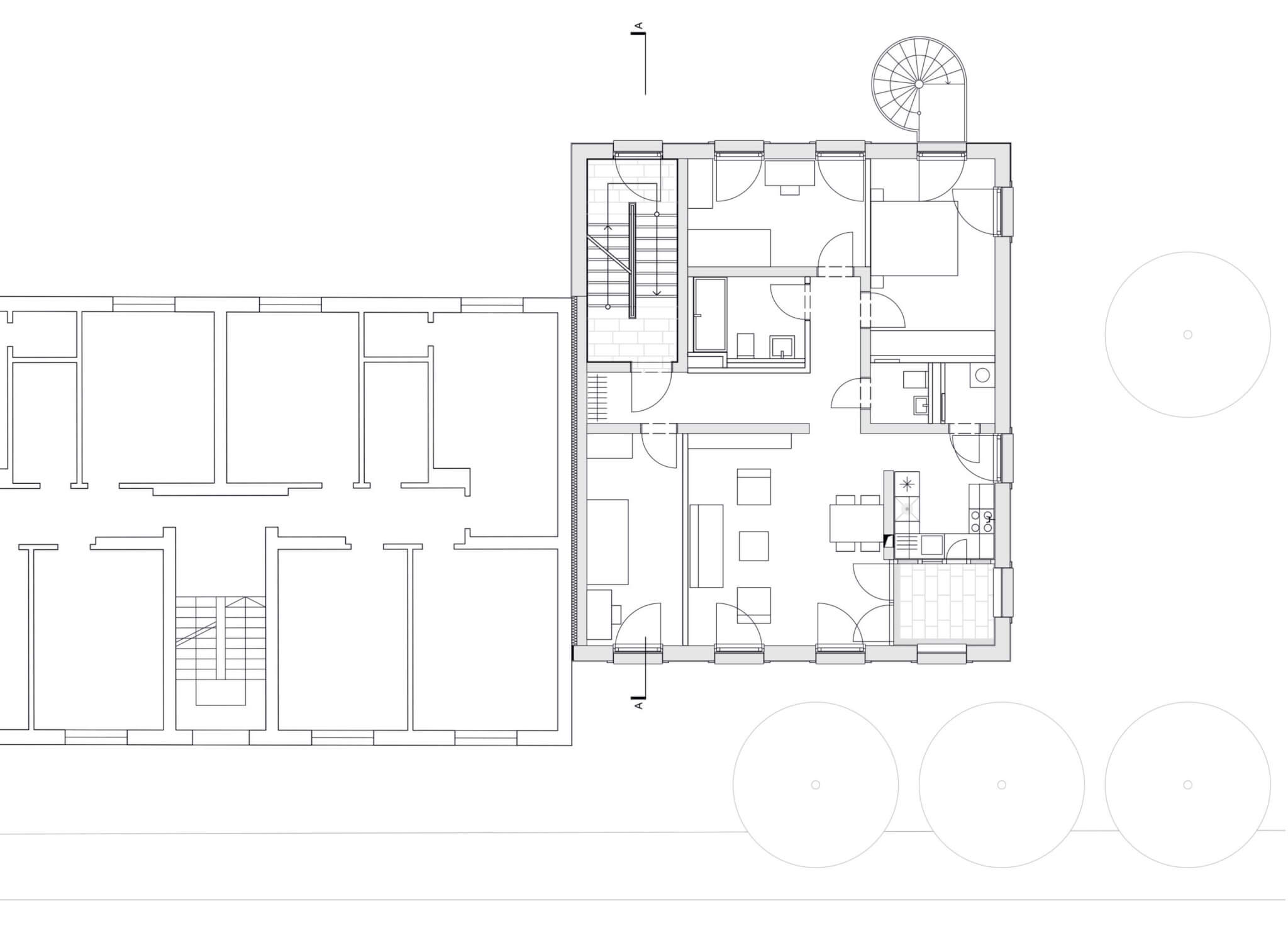
Der Wohnungsbau setzt sich mit der innerstädtischen Nachverdichtung in einer denkmalgeschützten Umgebung auseinander. Ein viergeschossiges Wohnhaus mit vier Wohneinheiten im Stadtteil Köln-Neuehrenfeld ersetzt einen eingeschossigen Gewerbebau der Blockrandbebauung. Durch den Neubau wird der zuvor geschlossene Blockrand aufgebrochen und das Blockinnere erhält eine neue Zugänglichkeit für alle Bewohner.
Der gesamte Block, inklusive Neubau, befindet sich im Eigentum der gemeinnützigen Wohnungsgenossenschaft DIE EHRENFELDER. Trotz der begrenzten Baufläche konnten familiengerechte 4-Zimmer-Einheiten mit 92 m² Nutzfläche realisiert werden.
Der Neubau steht in Bezug zu dem denkmalgeschützten Ensemble der 1930er Jahre, gruppiert um einen Platz mit Brunnenanlage. Der Baukörper bildet den Schlussstein der historischen Häuserzeile. Durch das kubische Volumen und die monochrome Gestalt, sowie einem Rücksprung aus der Straßenflucht nimmt der Neubau eine eigenständige städtebauliche Haltung ein. Die privaten Freisitze werden als Loggien zu einem Teil des Gebäudes und unterstreichen dessen klare, kubische Form. Der Versprung des Baukörpers schafft zudem Raum für eine straßenbegleitende Bepflanzung. In Korrelation zu der Eigenständigkeit der Gestalt, liefert der Neubau ebenso Antworten auf den Denkmalschutz des Nachbargebäudes und schafft durch Fensterformate, Fensterfaschen und einen Besenstrichputz historische Bezüge.
Das nachhaltige Energiekonzept des Gebäudes basiert auf einer Wasser-Wasser-Wärmepumpe. Sie gehört aufgrund der Nutzung der konstanten Temperatur der Grundwasserquelle zu den effizientesten Wärmepumpen und ermöglicht ein Niedertemperaturheizsystem. Für die Warmwassererzeugung wird das Energiekonzept mit Durchlauferhitzern ergänzt. Diese stützen sich energetisch auf die Photovoltaik Anlage auf dem Dach des Gebäudes, welche durch einen genossenschaftlich organisierten Stromanbieter betrieben wird.
Bauen im denkmalgeschützten Kontext
StatusRealisierung 09/18 - 01/20AuftraggeberDIE EHRENFELDER
Gemeinnützige Wohnungsgenossenschaft eGOrtKöln-NeuehrenfeldProgramm4 Wohneinheiten, Wohnfläche 356 m²LeistungenObjektplanung Lph 1-7
Objektplanung Lph 8: synarchitekten KölnMitarbeitSebastian Bauer
Serena Maddalor
Willi WagnerTragwerkbau|werk, KölnLandschaftStudio Grijsbach, Bergisch GladbachFotosMichael Reisch
Ludolf Dahmen